Beschreibung
Traumhafte Liegenschaft in der Toskana zu verkaufen
Entdecken Sie diese wunderschöne Liegenschaft in der Toskana, nur 15 Autominuten von Camaiore und Pietrasanta entfernt.
Die Lage bietet eine hervorragende Anbindung zur Autobahn, nur 20 Minuten zum Meer, eine kurze Distanz nach Forte dei Marmi, Viareggio und Lucca.
Die Flughäfen Pisa und Florenz sind in 30 bzw. 50 Minuten erreichbar.
Die ruhige Umgebung ist ideal für Entspannung und verfügt über zwei kleine Ortschaften in nur 5 Minuten Entfernung, die Restaurants, eine Apotheke, eine Poststelle und einen kleinen Supermarkt bieten. Eine schöne Kirche mit Sommerkonzerten rundet das Ambiente ab.
Die Liegenschaft befindet sich am Ende einer neu geteerter 700 m langen Zufahrtsstraße.
Wasser und Strom sind bereits angeschlossen. Hingegen Elektro- und Sanitärinstallationen müssten noch durchgeführt werden.
Das eingezäunte Grundstück von 15.000 qm ist von einer 2 Meter hohen Hecke umgeben und beherbergt 300 Olivenbäume, die professionell von einem Gärtner gepflegt werden und pro Jahr ca. 280 Liter hochwertiges Öl produzieren.
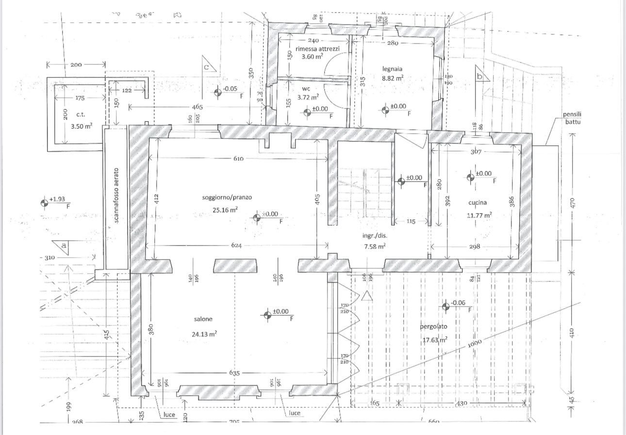
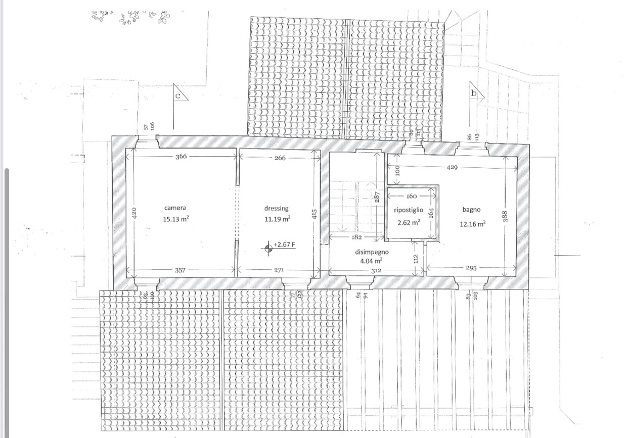
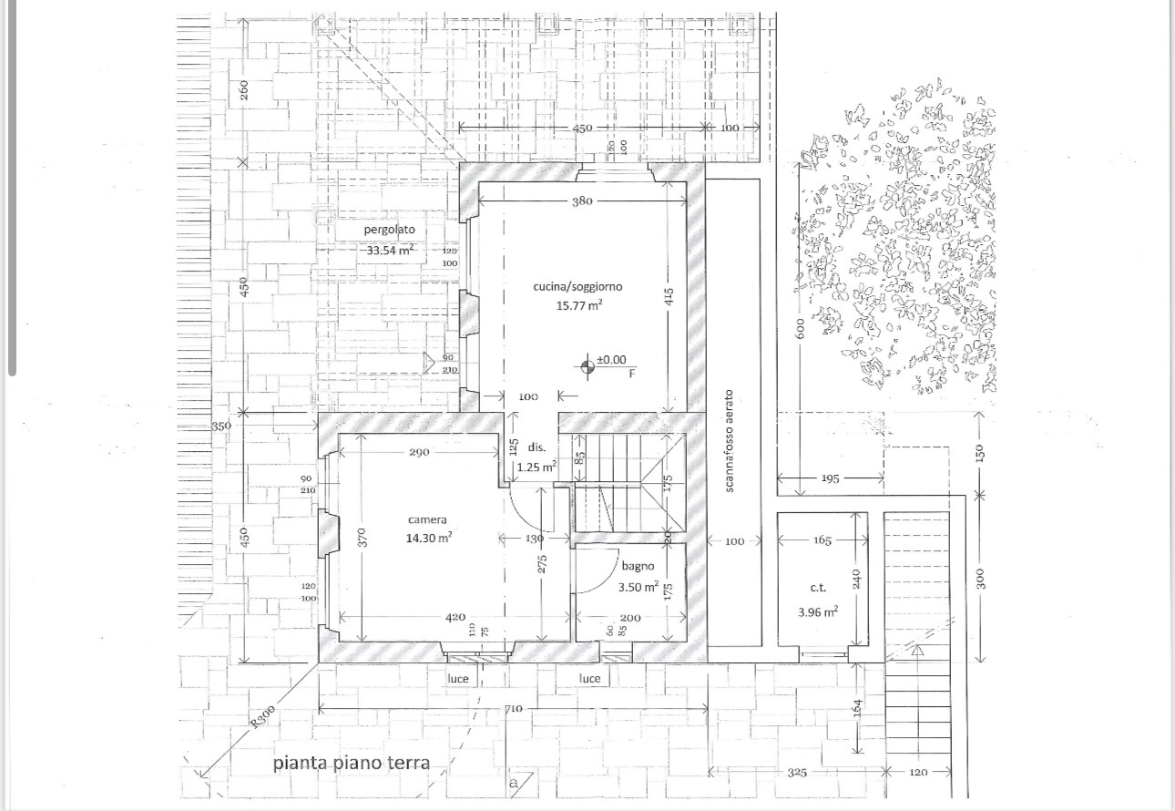
Das Haupthaus ist teilweise renoviert und umfasst im gesamten Projekt ca. 200 qm Wohnfläche.
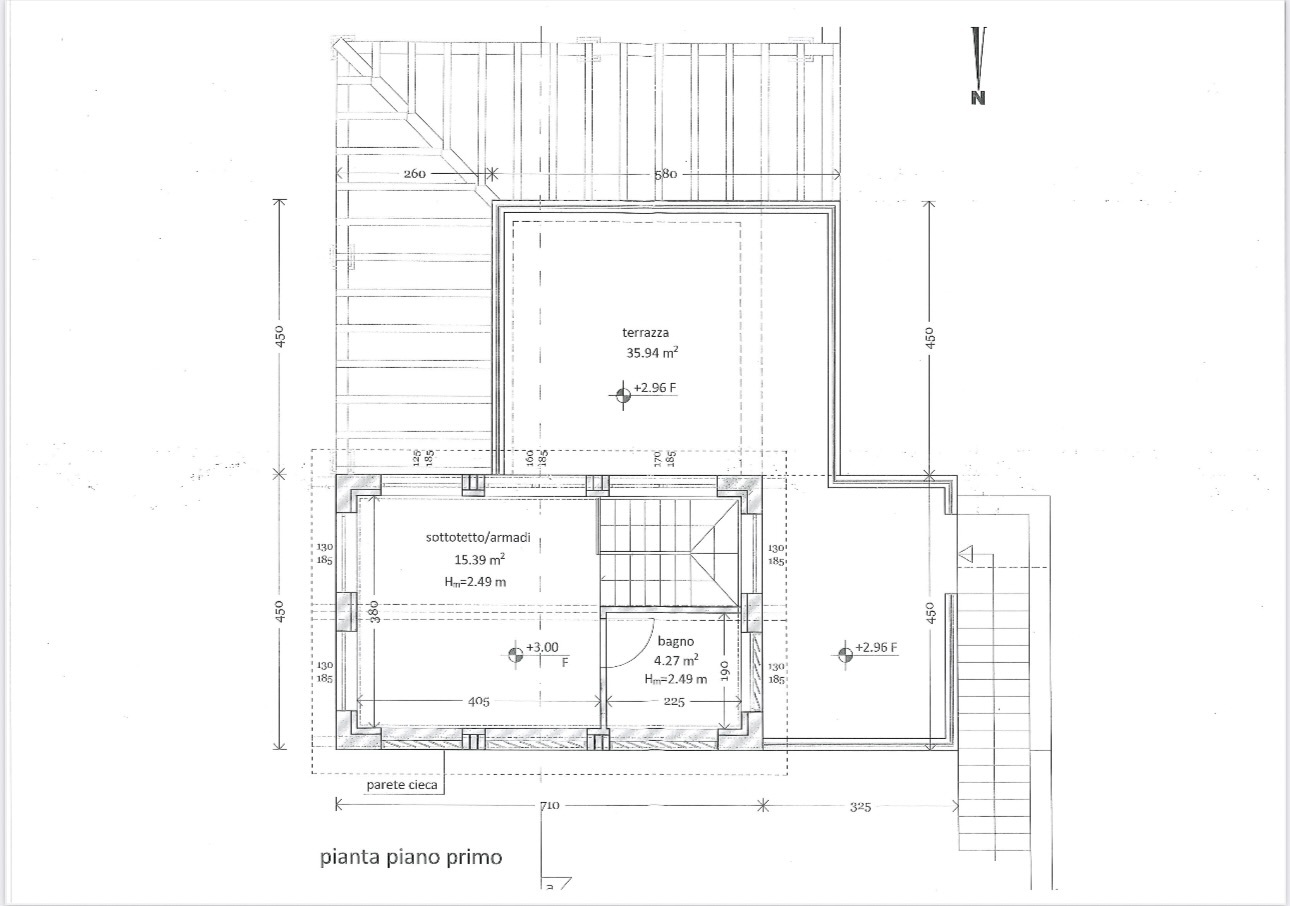
Das Gästehaus besteht aus 2 Schlafzimmern, 2 Badezimmern und im 1. Stock gibt es ein schönes Studio mit Blick ins Tal nach Camaiore sowie eine große Terrasse, die mit ca. 120 qm im Projekt berücksichtigt wird.
Weitere Anbauten sind möglich, sofern der Käufer das bereits bewilligte Projekt übernehmen möchte.
Zusätzlich gibt es einen Aussenpool von 20m x 3 m.
Die geschätzten Kosten für die gesamte Realisierung betragen ca. € 400.000 bis € 450.000.
Das aktuelle Projekt wurde von der Gemeinde akzeptiert, und die Baugenehmigung ist bereits erteilt wurden.
Es besteht die Möglichkeit, das Projekt neu zu gestalten, um den individuellen Wünschen des Käufers zu entsprechen.
Mit dem bereits vorliegenden Projekt kann die Baugenehmigung schneller erteilt und die Bauphase sofort eingeleitet werden, sobald alle Pläne der Kommune vorliegen.
Nutzen Sie diese einmalige Gelegenheit, in einer der schönsten Regionen Italiens zu investieren!
Falls Sie Anpassungen oder zusätzliche Informationen benötigen, lassen Sie es mich wissen!
Entdecken Sie die zauberhafte Region Camaiore
Willkommen in Camaiore, einem unberührten Juwel in der Toskana, das für seine atemberaubenden Landschaften und charmanten mittelalterlichen Dörfer bekannt ist. Hier erwarten Sie pittoreske Orte wie Monteggiori, Casoli, Gombitelli und Montebello, die mit ihrem historischen Flair und den fantastischen Ausblicken auf das Meer und die sanften Hügel verzaubern – ein Ort, an dem die Zeit stillzustehen scheint.
Der Hauptort Camaiore liegt in einer malerischen Talebene, nur 8 km vom glitzernden Meer entfernt und umgeben von den imposanten Apuanischen Alpen, deren Gipfel bis zu 1.300 m hoch aufragen. Mit einer reichen Geschichte, die bis in die Römerzeit zurückreicht, war Camaiore einst ein bedeutendes Lager in der Nähe von Lucca und ein wichtiger Halt auf der Via Cassia.
Der Name „Campus Maior“ spiegelt die historische Bedeutung der Stadt wider.
Im Mittelalter erlebte Camaiore dank der Via Francigena ein erhebliches Wachstum und wurde zur 27. Etappe auf der Pilgerreise des Erzbischofs Sigerico von Canterbury. Heute ist die Stadt ein kulturelles Zentrum und bietet viele Kunstschätze. Die Stiftskirche und die Benediktiner-Abtei St. Peter sind herausragende Beispiele für die beeindruckende Architektur und Geschichte, während die romanische Kirche im Dorf Pieve di Camaiore, die auf das Jahr 817 n.Chr. zurückgeht, die Besucher in ihre faszinierende Vergangenheit entführt.
Genießen Sie die unberührte Natur, die freundliche Atmosphäre und die reiche Kultur von Camaiore. Ob Sie auf der Suche nach Erholung, einem kulturellen Erlebnis oder einem Abenteuer in der Natur sind – diese Region hat für jeden etwas zu bieten.
Kommen Sie und entdecken Sie das unvergessliche Flair von Camaiore, wo Tradition und Schönheit aufeinandertreffen!
Eigenschaften
Umgebung
- Ländlich
- Berge
- Weinberg
- Wanderwege
- Radweg
- Arzt
Aussenbereich
- Ruhige Lage
- Begrünung
Ausstattung
- Wasseranschluss
- Stromanschluss
- Gasanschluss
- Bauland erschlossen
- Abwasseranschluss
- Grundausbau
Boden
- Erde
- Flach
Aussicht
- Talsicht
- Panoramasicht
- Ländlich
- Meersicht
- Garten
- Felder
- Berge
Verschiedene
- Nicht als Altlast eingeschrieben

















